È in corso il progetto del trasportatore AT100 Power & Free Range.
24
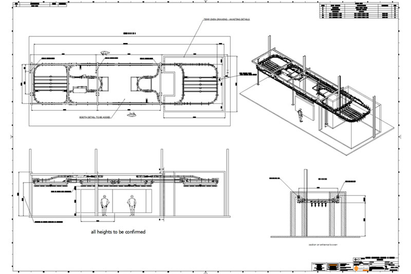
Questo è un progetto recente che stiamo progettando e che sarà presto pronto per l'installazione a maggio. Il trasportatore è della nostra gamma AT100 Power and Free, con una capacità di carico di 100 kg per carrello. La configurazione a doppia barra di carico offre una capacità di carico di 200 kg con dimensioni del prodotto fino a 3000 mm in linea, 2100 mm di altezza e 200 mm di larghezza con rotazione di indicizzazione a 360 gradi. Il sistema offre un design super efficiente e compatto grazie all'utilizzo della funzionalità Power and Free con lo smistamento laterale all'interno del forno e della baia di carico. Ulteriori aggiornamenti seguiranno.



#AmberIndustries #NastriTrasportatori #SistemiDiTrasporto #SistemiPerPallet #NastriTrasportatoriAGravità #NastriTrasportatoriMotorizzati #RulliACinghia #NastriTrasportatoriAdAlberoDiLinea #NastriTrasportatoriACatena #NastriTrasportatoriADalberghieri #NastriTrasportatoriDiSmistamento #NastriTrasportatoriDiTrasferimento #NastriTrasportatoriAerei #NastriTrasportatoriUK #MovimentazioneMateriali
Other Articles
Il Sidetrack 60 racchiuso in un involucro per un funzionamento più pulito e fluido
22
Venite a trovarci allo stand 2242 di Amber Industries al Paint Expo 2026, padiglione 2.
14
Il vantaggio tecnico di Sidetrack 60, progettato per garantire la massima operatività.
2
Venite a trovarci allo stand di Amber Industries al Paint Expo 2026!
2
Amber Industries sarà presente alla fiera Paint Expo 2026.
18
Pubblicati i dati tecnici relativi ai trasportatori a catena aerea.
20
Auguri di buone feste da Amber Industries
15
Sistemi di controllo per l'automazione dei trasportatori aerei
4
Gamma MCM Powertrack di Amber Industries
4
Sistemi di trasporto MCM Freetrack sotto i riflettori
13